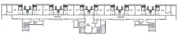
單位設計圖